Sotogrande, Cadiz, Spanien
Exclusives Landhotel im Stil und Character eins Andalusischen Klosters
Objektbeschreibung
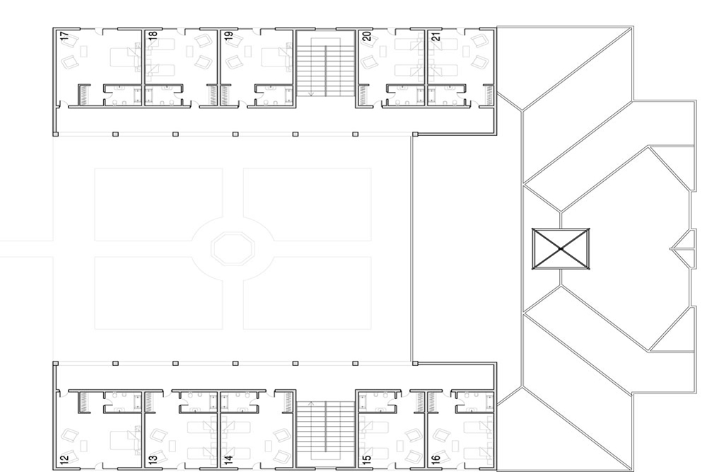
Versteckt in in den Hügeln zwischen Sotogrande und Gibraltar liegt dieses Hotel auf einem 28.000 m2 grossen Grundschück umgeben von reizvoller andalusischer Landschaft und in vollkommener Ruhe. Das Hotel wurde im Stil und Charakter eines Klosters des 18.Jahrhunderts erbaut. Die attraktiven, zweigeschossigen Gebäude wetteifern mit dekorativen Patios und prachtvollen Gartenanlagen. Die etwa 3.000 m2 gebauter Fläche sind in drei Zonen aufgeteilt: die Zone mit den Gästezimmern, der Schwimmbadbereich und die Zone, die Konferenzen und besonderen Feierlichkeiten vorbehalten ist. In der Hotelzone befinden sich 21 Doppelschlafzimmer einschliesslich von 4 konfortablen Suiten. Die Gästezimmer sind äusserst geschmackvoll und individuell eingerichtet und dekoriert in Anlehnung an den Charakter eines Klosters. Die gemütliche Hotelbar und das Restaurant verwöhnen auch die anspruchsvollsten Gäste. Hier befinden sich ausserdem die Büros des Hotels, Lager- und andere Nebenräume.
Die Zone des Schwimmbades ist von bunten mediterranen Gärten umgebenund verfügt über eine grosse, teilweise überdachte Sonnenterrasse, eine Poolbar und Restaurant, sowie Umkleideräume mit Duschen und Toiletten. Anschliessend befindet sich ein Parkplatz für 150 Fahrzeuge. Die dritte Zone dient der Organisation von Konferenzen und Feierlichkeiten. Die grosse rustikale Halle hat eine Kapazität von 250 und Personen und verfügt über eine eigene Küche. Im Anschluss liegt der grosse Patio mit Laubengängen an drei Seiten und einer Sitzplatzkapazität für 500 Personen. Hier befindet sich auch ein zweiter Parkplatz für 120 Fahrzeuge umgeben von gepflegten Gartenanlagen.
Das Hotel ist an das öffentlich Srom- und Wassernetz angeschlossen, verfügt darüberhinaus aber auch über einen Brunnen, welcher das Wasser für die Berieselung der Gärten liefert. Alle Gästezimmer sind mit Klimaanlage warm/kalt ausgestattet, haben Satelliten-Fernsehen und ADSL-Internetanschluss. Interessant ist, dass das Hotel eine Baugenehmigung für die Erstellung weitere 30 Gästezimmer, eines Spa und einer Kapelle mit einer Baufläche von insgesamt 1.900 m2 besitzt. Ausserdem gibt es die Möglichkeit, Pferdeställe und einen Reitplatz zu errichten. Gibraltar und die weltbekannte Urbanisation von Sotogrande mit seinen 4 Championship Golfplätzen, den Marinas und exzellenten Boutiquen liegen nur wenige Minuten entfernt. Die internationalen Flughäfen von Málaga und Jerez de la Frontera liegen etwa eine Stunde entfernt.
Grundstück: ca. 2,8 ha
Wohn-/Nutzfläche: ca. 3000 m²
Doppelschlafzimmer: 21 einschliesslich 4 Suiten
Besonderheiten: Konferenzräume, Poolbereich, Gartenanlage, 270 Parkplätze
Kaufpreis: € 3.000.000,-
Referenz: 14-002-MWOH
Für weitere Einzelheiten wie Bilder und Grundrisse, bitte unverbindlich Exposé anfordern.
Ansicht auf das Hotelanwesen


Blick in den Innenhof


Ansicht auf die Hotelzimmer

Salon

Eines der 21 Hotelzimmer

Blick auf den Pollberich

Außenansicht mit Gartenanlage


Grosser Festsaal

Grosser Patio mit Laubengängen

Grundriss OG

Grundriss EG

Abendliche Stimmung an der Poolbar

